copyright @ 2017 貴州黔力重工有限公司-黔力網 版權所有
址址:中國·貴州昌明經濟開發區
黔ICP備13005033號-1

- 服務熱線:
(+86)0854-5310003
發布時間:2022-05-15 14:39 點擊:822
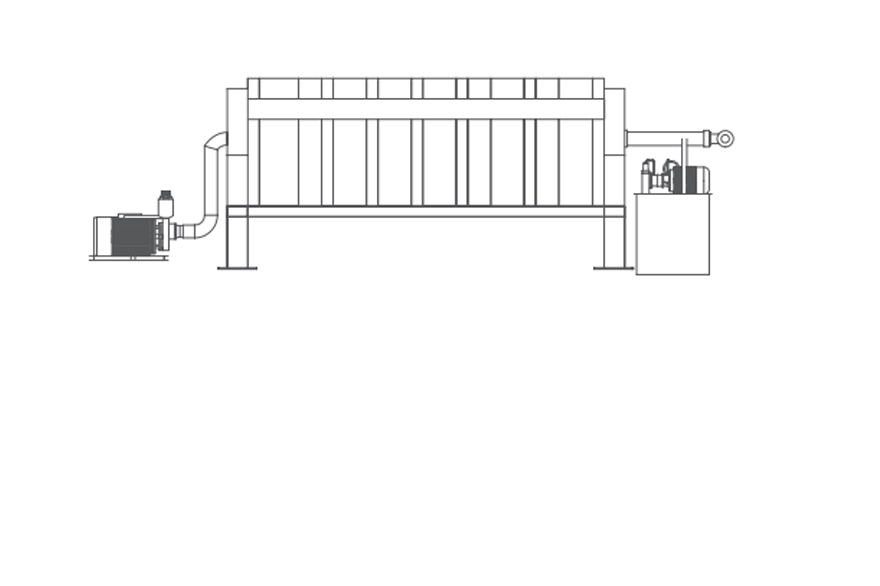
原理簡介
污泥經輸送泵進入動(靜)態混合器,同時加入一定濃度(0.05~0.1%)的絮凝劑相混合充分反應后,泥渣小顆粒物或懸浮顆粒物凝聚成體積 較大的團塊,物料間的結合水及表面水被分離成自由水,輸送到濾板的時候,在重力的作用下自由透過濾網背面而滲出分離,濾板之間的 相互伸縮擠壓,從而達到脫水的目的,通過楔形區、低壓區、中壓區、高壓區和強力對輥擠夾區將渣(泥)漿中的水份經過逐級增壓的方式不 斷擠壓出來,較后形成含水率轉低的濾餅排出,通過刮料板刮離,上下濾帶分開,經過高壓沖洗水及滾刷清除濾網表面引隙中的微量顆粒。
主要特點
結構簡單,使用方便,經濟型機型,全封閉式結構,可以直接排風,占地面積小,脫水效率高。
適用范圍
廣泛用于石油、化工、冶金、制藥、制糖、選礦、食品及污水處理等工礦企業。

